





T3 – Rennes (35000) – 199500€ HAI
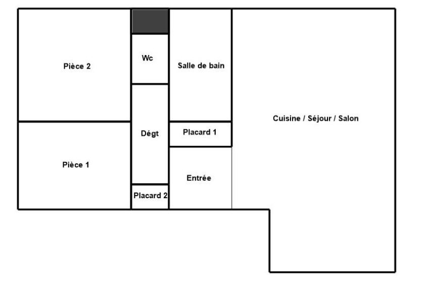
Quartier La Touche, rue Maréchal Lyautey, à 900 mètres de la place des Lices, cet appartement de 3 pièces principales de 61,20 m² carrez se situe en rez-de-chaussée d’une résidence de deux étages. Dans un environnement calme et verdoyant, ce bien propose une configuration optimisée avec une spacieuse pièce de vie exposée Ouest intégrant l’espace cuisine, deux chambres dans la partie nuit séparée, une salle d’eau et WC indépendant. Un rafraîchissement est à prévoir pour personnaliser ce logement.
Garage et Cave
Exclusivité dlj, le syndic de la copropriété
Les informations sur les risques auxquels ce bien est exposé sont disponibles sur le site Géorisques : https://www.georisques.gouv.fr/ (5.00 % honoraires TTC à la charge de l’acquéreur.)
Copropriété de 178 lots – dont 68 lots habitation. (Pas de procédure en cours).
Charges annuelles : 1061.86 euros.
DPE réalisé après le 01/07/2021
Consommation (énergie primaire) : 232 kWh/m².an
Émissions : 46 kgCO2/m2 .an
Estimation des coûts annuels en énergie pour un usage standard : entre 1300 et 1830 € par an.
Selon prix moyens des énergies indexés sur l’année 2021 (abonnement compris).
Pour offrir les meilleures expériences, nous utilisons des technologies telles que les cookies pour stocker et/ou accéder aux informations des appareils.